Types de fixations pour pierre naturelle en façade
Fixation en Joint
Comme les pierres peuvent souffrir des dilatations dans trois sens différents,
elles doivent être considérée comme un seul élément.
Fixation en joint horizontal
Il existe un vide min. de 2mm entre le méplat et la partie supérieur
de la pierre placée en bas.
Un Rabaissement de la pierre pour dissimuler l’axe réglable peut être utilisé,
en respectant le vide min. de 2mm.
Le poids de la pierre est supporté par les 2 attaches.
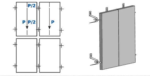
Fixation en joint vertical
Considérer les deux cas:
– Si le joint est libre de dilatation, le poids est supporté par les 2 attaches;
– L’attache supporte le poids total de la pierre si le joint inférieur ne soufre pas de dilatation.
Avec l’utilisation de 3 support, il se considère seulement deux contribuent au support de la pierre.
Ergot et manchon
L’ergot et muni d’une collerette d’auto centrage. L’ergot est une tige cylindrique que on loge à l’intérieure du trou pratiqué dans la pierre. Le manchon en PVC est disposé dans le trou de la pierre pour assurer la libre dilatation de l’ergot.
